|
1920 시즌 웰리힐리파크 시즌방 맴버를 모집합니다.
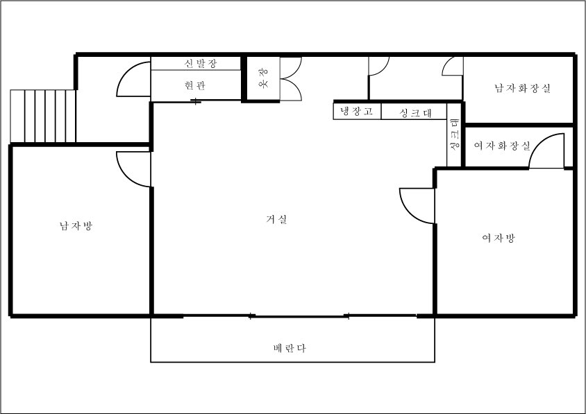
시즌방 위치와 방구조는 아래사진 참조 부탁드립니다.
동호회는 아니고 지금까지 6년동안 같은 건물에서 지인들끼리 쭉 유지하고 있는 소박한 시즌방입니다.
아래 사진처럼 전원주택같은 넒은 마당이 있는 집 2층 독채가 저희 시즌방입니다.
(주차장 넒어 주차문제 없음)

방2 / 화장실2 / 큰거실1 / 베란다로 구성되어 있습니다.
화장실과 같이 붙어있는 방을 여자방으로 사용할 예정입니다.


- 리조트까지 걸어서 대략 15분 정도 이고 큰 도로로 나가면 바로 둔내셔틀 승차장 입니다.
- 차량 있는분이 풀상주하고 주말에는 차잇는 분들이 많아서 카플로 대부분 이동합니다.
- 혹시 새벽셔틀이나 야간 셔틀타고 들어오시는 분들은 도착해서 전화주시면 언제든 시즌방 맴버들이 픽업하러 올라갑니다.
장비 보관은 시즌방에 하셔도 되고 라커에 보관하셔도 되지만 대부분의 맴버들이 라커를 이용하고 있습니다.
(시즌방 현관에 부츠보관할 큰 신발장 있음)
- 보드강사로 있는 분이 있어서 원포인트나 시즌강습 가능 (최근 두시즌 KSIA 기선전 입상자 보유중)
- 파크, 하프파이프, 라이딩등 다양한 성향의 라이더들이 포진 (원하시는대로 같이 타면되요.)
- 의류브랜드 스폰라이더가 있어서 해당브랜드 구매시 할인적용 가능.
- 시즌방 입방식겸 안전기원 고사, 크리스마스 고기파티, 연말 파티 진행.
- 야메로 사진배원 포토그래퍼가 인생샷 촬영
- 야메 요리사가 있어서 먹고 싶은 음식 웬만하면 다 만들어드림(에어프라이어 사용가능)
- 인터넷 및 와이파이 사용가능
- 시즌방 사용기간 : 오픈일~ 폐장일+@
- 시즌방 가격 : 55만원 ( 주중, 주말, 부분상주, 풀상주 상관없이 동일 )
- 모집연령 : 미성년자를 제외한 모든연령
- 시즌방 지원사항 : 관리비포함(쌀, 김치, 라면 및 생필품, 커피(카누/믹스) 제공)
- 기타사항 : 다 같이 모여 먹는 저녁 술 등은 현장에서 1/N 하는것을 원칙으로 합니다.
- 시즌방 정원 : 총 10명 (현재 남5 / 여 2)
- 모집인원 : 남2, 여 1 (주중 /주말 구분없음)
- 생각보다 넓어서 북적북적되지 않고 내집에 온듯 여유있게 지낼수 있습니다.
- 시즌방규정사항
(대부분의 시즌방 규정과 동일하며 단체 생활의 기본 매너만 지키면 됩니다)
1. 실내 절대 금연 , 새벽 1시 이후 시즌방내 음주/소란 불가
2. 남녀 혼숙불가
3. 매주 일요일 아침 땡보딩 엄수(시즌방내의 게스트를 포함한 모든 인원이 나가서 보딩 해야합니다.)
4. 게스트는 투자자 지인으로만 한정
5. 매주 일요일 오후(3시 이후) 시즌방 단체 청소
- 이런 분들은 뒤로가기 눌러주세요
1. 단체생활이 불편하신분
2. 주사가 심한분
3. 보드는뒷전이고 잠만 주무시는분
4. 타인의 물건을 함부로 탐하시는분
5. 대외적으로인식이 안좋으다 판단되시는분
6. 트러블 메이커 (편가르기, 개인주의, 황제주의, 여왕주의, 꼰대 등등)
- 시즌방 문의 연락처 010-6332-0250 (문자나 카톡 주시면 편한시간대에 통화할수 있게 하겠습니다.
- 시즌방 투자자는 입금이후에 시즌방 투자금 환불이 불가 합니다.
- 양도는 가능하지만 기존투자자들의 읜견수렴과 동의를 원칙으로 합니다.
- 게스트 운영등으로 시즌방 회비가 남는다면 1/n 할 예정입니다.